Nhà phố 4 tầng mặt tiền 5m với phối cảnh kiến trúc hiện đại và thông thoáng, công năng khoa học, giúp nhiều gia đình có được không gian sống khoa học. Được sự đồng ý của Mrs. Tiến, Thái Nguyễn công khai hồ sơ kiến trúc, hy vọng các bạn sẽ có thêm những ý tưởng thiết kế mới, để hoàn thiện ngôi nhà cho gia đình mình nhé.
Thông tin hồ sơ thiết kế mẫu nhà phố 4 tầng mặt tiền 5m
- Chủ đầu tư: Nguyễn Minh Tiến
- Địa chỉ: Quận 9 Thành Phố Hồ Chí Minh
- Năm thiết kế: 2019
- Diện tích thiết kế: 5x18m
- Kiến trúc sư: Thịnh Nguyễn
- Loại hình: nhà phố 4 tầng
- Mặt bằng công năng sử dụng: 4 phòng ngủ, phòng khách, phòng bếp, phòng thờ
- Kinh phí đầu tư dự kiến: 1,6 tỷ
Yêu cầu tư vấn thiết kế mẫu nhà phố 4 tầng mặt tiền 5m
Gia đình anh Tiến hiện đang sinh sống tại thành phố Hồ Chí Minh, gồm có 5 thành viên là hai vợ chồng và 3 con. Theo như anh xem tuổi thì năm 2021 anh sẽ được tuổi xây nhà, anh muốn tìm hiểu thuê thiết kế nhà trước để hoàn thiện hồ sơ, chọn ngày động thổ, khởi công công trình xây dựng mới cho gia đình.
Diện tích ô đất của gia đình tọa lạc ngay tại mặt đường chính. Diện tích xây dựng dự kiến là 5x18m, thiết kế 4 tầng.
Một yêu cầu đặc biệt của anh đó là muốn thiết kế có sân trước thoáng rộng, bố trí sân thượng ở tầng 2 sẽ full diện tích mặt tiền tầng 1. Từ tầng 3 đến tầng 4 thì ban công sẽ thụt vào, để đảm bảo quy định mật độ xây dựng của thành phố.
Mặt tiền mẫu nhà phố 4 tầng mặt tiền 5m thiết kế đảm bảo sự thông thoáng, tính thẩm mĩ cao, có sự nổi bật hơn so với các ngôi nhà kề bên đã xây dựng trước đó cùng phong cách.

Thay vì sử dụng lan can sắt, anh muốn sử dụng lan can kính cường lực có độ dày 15mm cho mẫu nhà phố 4 tầng. Khoảng sân thượng ở tầng 2 và tầng mái sẽ được xử lý thiết kế lam chắn nắng để tạo hiệu ứng thẩm mĩ, chắn nắng và bụi cho không gian phía trong.
Ngoại thất công trình ưu tiên sử dụng sơn màu trắng sáng, thiết kế có thể hiện vị trí cảnh quan tiểu cảnh sân vườn để ngôi nhà trở nên hài hòa và tràn ngập sức sống hơn.
Phong cách hiện đại hướng đến sự trang nhã, tiện nghi, nhưng không quá cầu kỳ. Mẫu nhà ống đẹp cần có sự kín đáo, đảm bảo an toàn, vững chắc nhưng cũng phải thoáng mát.
Ngay sau khi tiếp nhận yêu cầu tư vấn của anh Tiến, kiến trúc sư đã tiến hành trao đổi, thu thập thêm yêu cầu để tư vấn mặt bằng trước. Sau khi anh chốt mặt bằng, kiến trúc sư sẽ về trực tiếp, đo đạc và khảo sát để lên phương án tư vấn sao cho khoa học và hợp lý nhất cho gia đình.
Chiêm ngưỡng phối cảnh kiến trúc mẫu nhà phố 4 tầng mặt tiền 5m

Mảnh đất có sự vuông vắn, bố cục hình khối được triển khai cân đối và đồng đều. Mặt tiền ngôi nhà tạo điểm nhấn với thiết kế khối trong khối. Sự kết hợp của khối vuông nhỏ và khối hình chữ nhật chạy dọc từ tầng 2 lên tầng 4, ôm trọn mặt tiền của không gian. Khối kết cấu này vừa có tác dụng chống đỡ chịu lực chung, vừa kết hợp tạo hiệu ứng thẩm mĩ cho mặt tiền phía trước của mẫu nhà phố 4 tầng mặt tiền 5m.
Khối ban công đua rộng ở tầng 2, ôm trọn và bao gọn mặt tiền ở tầng 1, tạo nên một kết cấu kín cổng cao tường, đam bảo an ninh cho ngôi nhà.
Hệ thống cổng tường thiết kế hết đất, được ốp đá màu vàng sáng kết hợp với hệ thống cửa từ và cửa kính, có tác dụng chắn bụi, ngăn ồn nhưng vẫn cung cấp đủ ánh sáng cho không gian trong nhà.
Hệ thống lam phun sơn tĩnh điện trắng ở tầng thượng và ban công tầng 2, kết hợp với lam nâu ở góc trái của công trình, phân bổ sự cân đối và hài hòa hơn về mặt hiệu ứng không gian.
Thay vì sử dụng các tông màu sơn pastel, phối nhiều màu, kiến trúc sư chỉ định sơn màu trắng sữa, sẽ giúp ngôi nhà giữ được nét hiện đại, trẻ trung và có cảm giác tinh tế, thoáng rộng hơn. Hệ thống cửa nhựa lõi thép được lắp đặt đồng bộ với không gian, mang lại sự hài hòa chung.
Ngôi nhà toát lên sự kiên cố, vững chắc, ấn tượng. Không gian nhà phố giữa những mẫu thiết kế giống nhau vẫn có điểm nhân tạo sự khác biệt cho riêng mình.
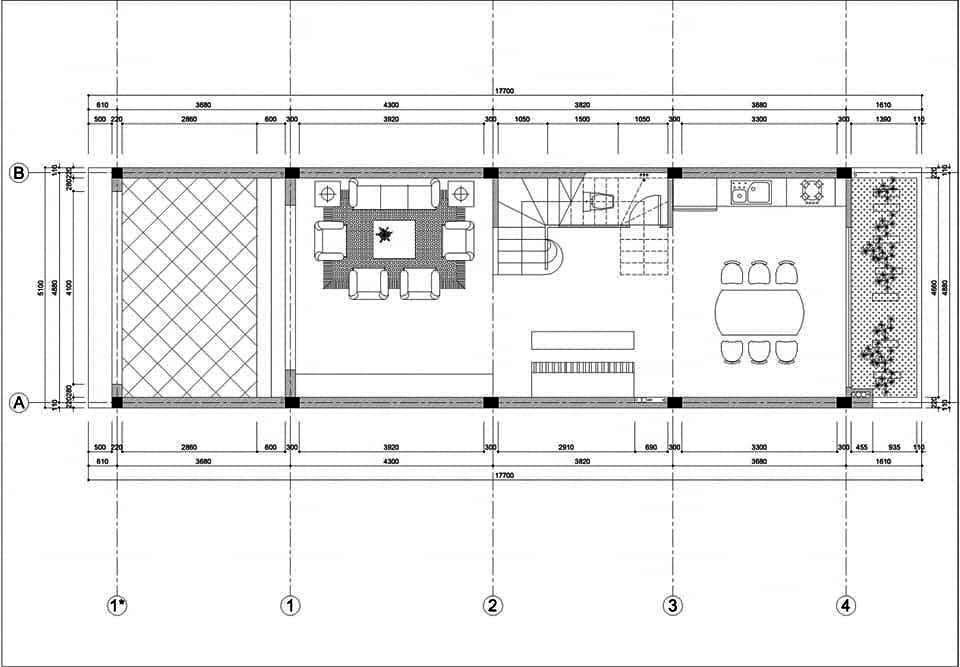
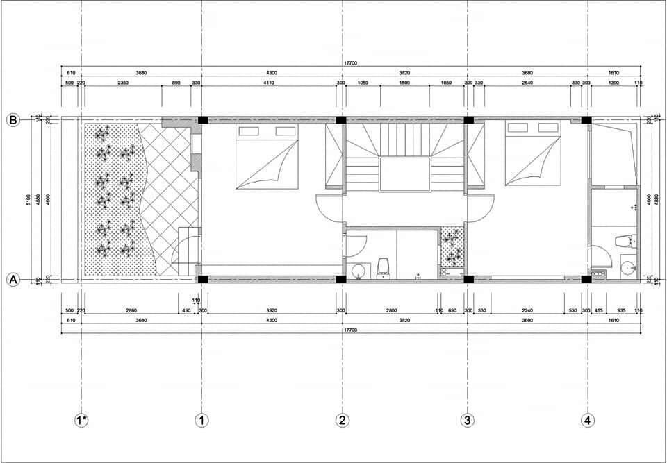
Mặt bằng công năng sử dụng mẫu nhà phố 4 tầng

Tầng 1 dành 10m để thiết kế sân trước, đây là nơi để xe của các thành viên trong gia đình. Phòng khách được đặt ngay tiếp giáp sân trước, để đón nhận được nhiều ánh sáng và gió thoáng cho không gian phía trong. Cầu thang thông tầng được đặt ở giữa, thiết kế tận dụng chân gầm để làm nhà vệ sinh chung. Đối diện sảnh thang có khoảng trống, là nơi để đàn piano cho cô con gái tập đàn.
Phía trong là phòng bếp và bàn ăn, có thiết kế cửa ra sân ướt phía sau, được tận dụng trồng tiểu cảnh nhỏ để đảm bảo không gian đối lưu cho mẫu nhà ống 4 tầng, cũng như tạo điểm nhấn hơn cho mẫu nhà phố.

Tầng 2 bố trí 2 phòng ngủ, phòng ngủ chính cho hai vợ chồng hướng ban công trước ở tầng 2. Thiết kế rộng rãi và thoáng đãng. Phòng ngủ của con được thiết kế đối diện bên kia sảnh thang, cả hai phòng đều có nhà vệ sinh khép kín, để thuận tiện cho việc sinh hoạt riêng tư.

Tầng 3 thiết kế 2 phòng ngủ, có vệ sinh khép kín, phân bổ đều qua sảnh thang thông tầng. Diện tích ban công bị thu hẹp hơn với tầng 2, tuy nhiên vẫn đảm bảo sự lưu thông không khí cho không gian của ngôi nhà.

Tầng 4 thiết kế phòng thờ và không gian giặt phơi, sân chơi. Phòng thờ đặt hướng ban công trước để đón nhận sự thông thoáng và ánh sang tự nhiên, đảm bảo cao nhất sự yên tĩnh, thoáng mát cho không gian tâm linh của gia đình. Phòng giặt đặt ở vị trí đối diện sảnh thang, tận dụng được khoảng trống để mở rộng khu sân phơi và sân chơi.
Hồ sơ thiết kế mẫu nhà phố 4 tầng mặt tiền 5m nhanh chóng được hoàn thiện, chủ đầu tư hoàn toàn đồng ý với phương án thiết kế chúng tôi đưa ra. Từ công năng, tính thẩm mĩ, tính phong thủy đều có sự tính toán chi tiết và cẩn thận, từ đó giúp gia chủ an tâm với không gian sống trong tương lai.
Mọi yêu cầu tư vấn thiết kế nhà, thiết kế nội thất, khách hàng vui lòng liên hệ trực tiếp với kiến trúc sư của chúng tôi, Thái Nguyễn luôn sẵn lòng làm hài lòng Quý khách hàng với chất lượng dịch vụ và đơn giá tốt nhất.

