Trong cuộc sống hiện đại hiện nay, việc mỗi gia đình đều sở hữu 1 chiếc ô tô là điều bình thường. Chính vì vậy, rất nhiều gia chủ lựa chọn xây mẫu nhà 2 tầng mái thái có gara ô tô sang trọng hiện đại. Nếu bạn chưa tìm được mẫu nhà ưng ý có thể tham khảo mẫu nhà mà chúng tôi gợi ý dưới đây:
Thông tin mẫu nhà 2 tầng mái thái có gara ô tô

Thông tin mẫu nhà 2 tầng mái thái có gara ô tô
Chủ đầu tư: Anh Hùng
| Số tầng | 2 tầng |
| Phong cách kiến trúc | Hiện đại |
| Kích thước | 8x15m |
| Mặt bằng công năng: | Tầng 1: Phòng khách, phòng bếp + ăn, phòng ngủ, 1 phòng tắm, 1 wc, gara ô tô. Tầng 2: Phòng thờ, 3 phòng ngủ, 2 nhà vệ sinh. |
Phối cảnh mẫu nhà 2 tầng mái thái có gara ô tô
Thiết kế nhà 2 tầng mái thái có gara được rất nhiều người yêu thích nhờ vẻ đẹp sang trọng và công năng sử dụng của nó. Điểm nổi bật nhất của căn nhà có thể kể đến là thiết kế mái thái tạo sự bề thế. Loại mái này có độ dốc lớn giúp thoát nước tốt hơn vào mùa mưa tránh tình trạng ẩm, mốc làm xấu phần ngoại thất của ngôi nhà.

Phối cảnh mẫu nhà 2 tầng mái thái có gara ô tô
Màu sắc chủ đạo của ngôi nhà là màu trắng kết hợp với ốp giả gạch màu nâu giúp phần mặt tiền trở nên sáng trọng, nổi bật và thu hút ánh mắt của mọi người. Cửa chính của ngôi nhà được làm bằng gỗ màu nâu chắc chắn với tạo sự bề thế cho ngôi nhà.
Hệ thống cửa phụ và cửa sổ được làm bằng kính giúp lấy sáng cho ngôi nhà một cách tốt nhất. Phần ban công được gia đình sử dụng kính cường lực tạo sự thông thoáng rộng rãi. Tại ban công gia chủ kết hợp để một bộ bàn ghế để thưởng trà hoặc đọc sách.
Mẫu nhà có gara ô tô hiện đại xu hướng năm 2022
Những ngôi nhà có mái thái thường là sự kết hợp giữa phong cách hiện đại và cổ điển. Mặt tiền của ngôi nhà thường được trang trí đơn giản nhưng không hề đơn điệu. Phần gara ô tô được thiết kế tinh tế, khéo léo tạo điểm nhấn cho ngôi nhà thêm phần ấn tượng.

Mẫu nhà có gara ô tô hiện đại xu hướng năm 2022
Thiết kế mẫu nhà 2 tầng mái thái có gara cũng là giải pháp vừa giải quyết được vấn đề chỗ để phương tiện sao cho an toàn, hợp lý lại vừa tiết kiệm được rất nhiều diện tích xây nhà. Gara không chỉ để xe mà có thể làm nơi kinh doanh hay nhà kho.
Ngoài ra, nếu thiết kế gara trong nhà, bạn sẽ không phải mất công ra ngoài lấy xe, nhất là vào trời mưa. Bạn hoàn toàn có thể di chuyển từ phòng khách hoặc bếp ra cửa sau lấy xe rất thuận tiện. Ngoài ra, việc để xe tại nhà cũng tiết kiệm được 1 khoản chi phí không nhỏ cho việc thuê bãi đổ xe bên ngoài.
Bản vẽ thiết kế mẫu nhà 2 tầng mái thái có gara ô tô
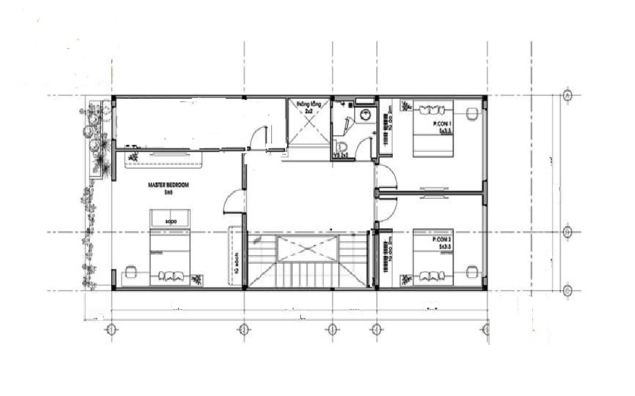
Bản vẽ mặt bằng công năng tầng 1
Tầng 1: Phòng khách, phòng bếp + ăn, phòng ngủ, 1 phòng tắm, 1 wc, gara ô tô.

Bản vẽ mặt bằng công năng tầng 1
Ngay sau sảnh chính là phòng khách, căn phòng được bố trí rộng rãi để tiếp đón khách đến thăm nhà và làm không gian sinh hoạt chung cho các thành viên. Tiếp đến là phòng bếp và phòng ăn giúp các thành viên trong gia đình có thể cùng nhau thưởng thức các món ăn ngon.
Tại tầng trệt cũng được bố trí 1 phòng ngủ tiện cho người lớn tuổi trong nhà tránh việc phải leo trèo cầu thang. Phòng tắm và nhà vệ sinh được bố trí riêng biệt cuối nhà giúp đảm bảo riêng tư trong sinh hoạt. Gara ô tô được bố trí cạnh nhà tạo sự tiện lợi cho gia chủ.
Mẫu thiết kế công năng tầng 2
Tầng 2: Phòng thờ, 3 phòng ngủ, nhà vệ sinh.
Mẫu thiết kế công năng tầng 2
Tầng 2 được bố trí chủ yếu là không gian nghỉ ngơi với Phòng sinh hoạt chung và 3 phòng ngủ trong đó có 1 phòng ngủ master, cả 3 căn phòng đều được bố trí cửa sổ để đón ánh sáng và gió tự tự nhiên vào trong căn phòng. Nhà vệ sinh được bố trí giữa nhà tạo điều kiện sinh hoạt thuận lợi cho các thành viên.
Ngoài ra, tầng 2 được bố trí ban công rộng rãi và được kê 1 bộ bàn ghế để các thành viên trong gia đình có thể sử dụng. Gia chủ cũng có thể sử dụng thể tổ chức bữa tiệc nướng nhỏ để cùng các thành viên trong gia đình thưởng thức.
Thiết kế nội thất mẫu nhà 2 tầng mái thái có gara ô tô

Nội thất phòng khách đẹp
Phòng khách nhà 2 tầng đẹp với bộ bàn ghế sofa êm ái cung cấp chỗ ngồi lý tưởng. Việc bố trí nội thất sát tường tạo ra một lối đi rộng rãi bên ngoài. Trên tường được ốp đá hoa văn nổi bật kết hợp thêm một chiếc kệ đựng sách hoặc các vật dụng trưng bày. Nội thất cao cấp kết hợp với sắc màu khéo léo giúp phòng khách trở nên sang trọng.

Nội thất phòng bếp và phòng ăn
Bếp và phòng ăn được kết nối mở với phòng khách. Tủ bếp hình chữ L với sự kết hợp màu xám và trắng sang trọng. Bộ bàn ghế ăn cũng được sử dụng sắc màu tương tự. Nơi đây được đặt để một đèn trang trí vô cùng ấn tượng.

Nội thất phòng ngủ nhà 2 tầng mái thái
Mỗi phòng ngủ của thiết kế biệt thự hiện đại đều được kiến trúc sư lên phương án thiết kế riêng biệt. Nhằm phù hợp với sở thích của từng chủ nhân trong căn phòng. Nội thất gỗ, gam màu trung tính giúp phòng ngủ ấm áp hơn và thiết kế cửa ra khuôn viên bên ngoài thoáng mát.
Không gian nội thất phòng tắm được thiết kế chỉn chu
Không gian nội thất phòng tắm cũng được thiết kế chỉn chu, sang trọng với phong cách hiện đại. Tất cả được kết hợp với nhau một cách ăn ý giúp căn phòng trở nên sạch sẽ và thông thoáng hơn. Phần gạch ốp màu sáng tạo cảm giác dịu mắt hơn cho người nhìn.
Chúng tôi vừa giới thiệu bạn mẫu nhà 2 tầng mái thái có gara ô tô. Nếu bạn yêu thích mẫu nhà trên vui lòng liên hệ chúng tôi để được đội ngũ kiến trúc sư tư vấn phù hợp với diện tích, công năng và phong thủy giúp mang lại tài lộc cho gia chủ.
